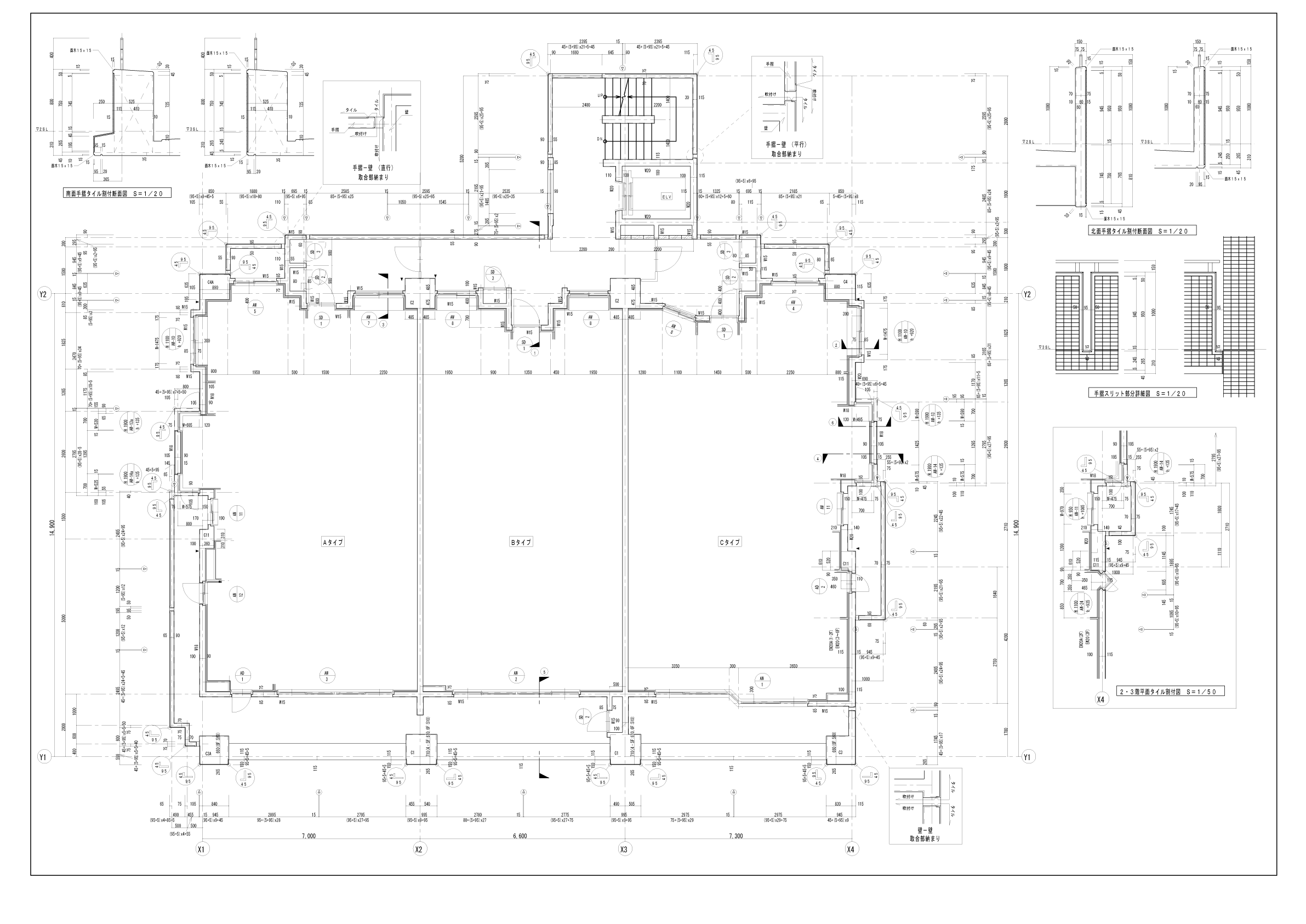
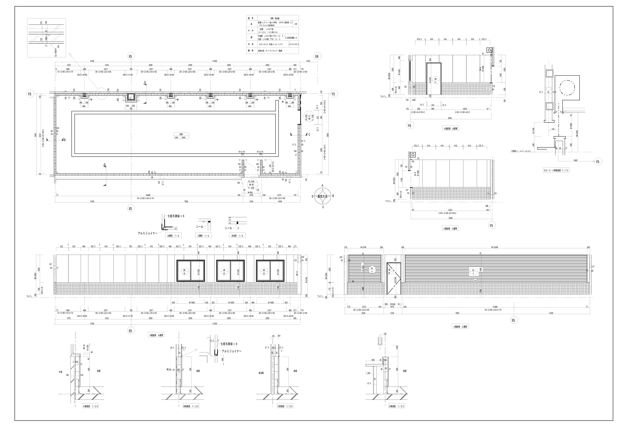
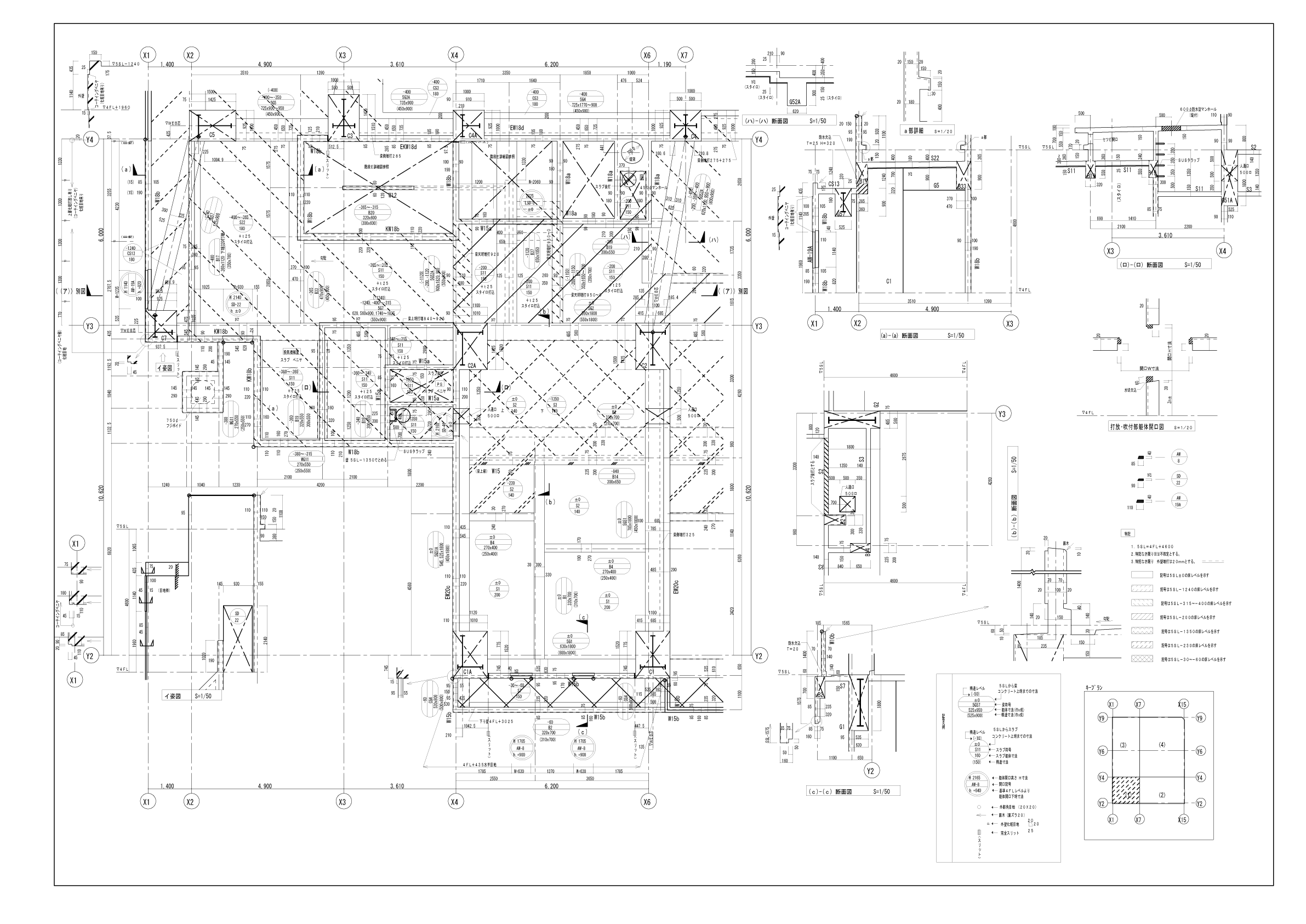
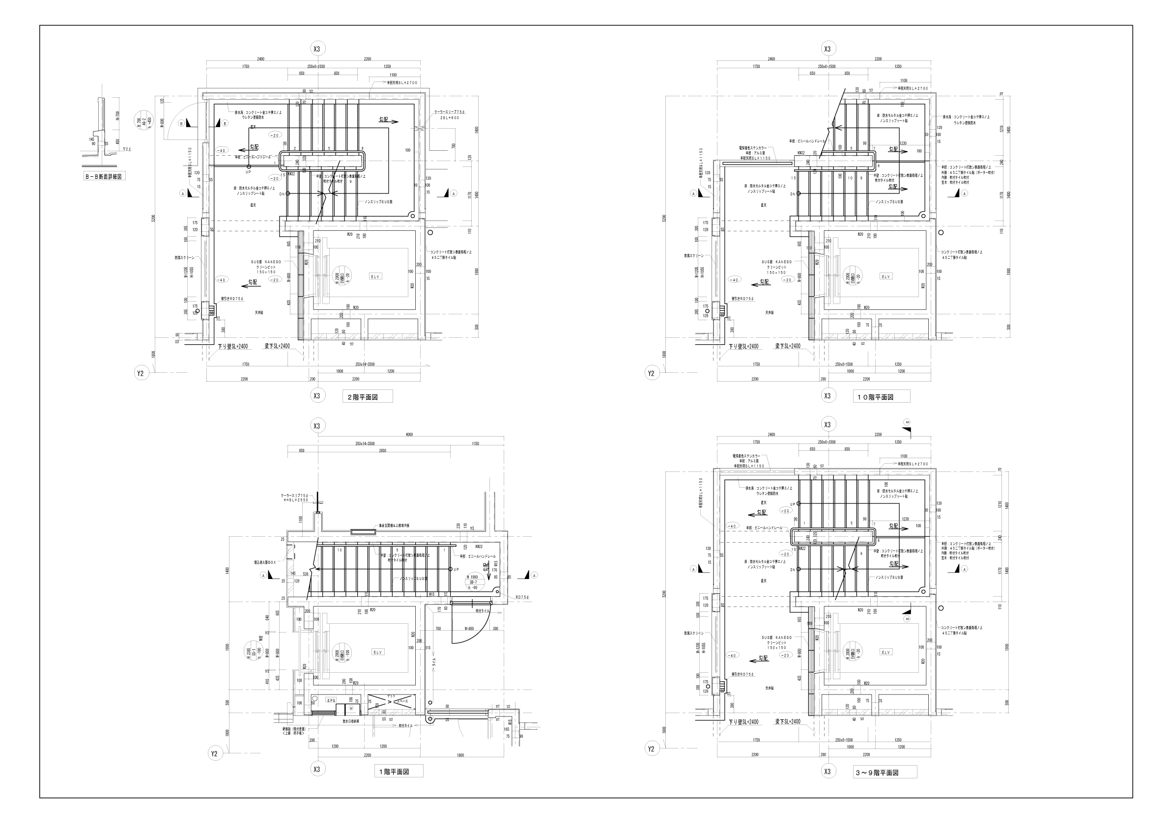
施工図業務DRAWING FOR CONSTRUCTION
施工図業務では、設計図に基づき、施工用詳細図、躯体図の作成及び支援を行います。CADによる情報の一元化により、組織化・集団化した作業体制の中で、大型案件に対してもスピーディー、かつ正確で安全な図面の作成、品質管理・納期厳守を実現致します。

1.施工図
2.主な業務実績
(順不同)
| プロジェクト名 | 構造 | 規模 | クライアント |
|---|---|---|---|
| 名古屋空港国際線ターミナルビル建設工事 | RC・S | 59,300 | 大成建設 |
| 名古屋ドーム球場建設工事 | SRC | 118,830 | 竹中工務店 |
| 大垣ソフトピアジャパンセンタービル建設工事 | RC・S | 34,000 | 竹中工務店 |
| 豊橋市民病院新築工事 | SRC | 23,000 | 大成建設 |
| 志摩スペイン村従業員寮新築工事 | RC | 45,000 | 大成建設 |
| 三重国立病院看護学校新築工事 | RC | 7.991 | フジタ |
| 岡崎市民病院新築工事 | SRC | 30,000 | フジタ |
| 県有地信託ビル新築工事 | SRC | 21,000 | 鴻池組 |
| 津島市市民病院建築工事 | RC | 8,400 | 鴻池組 |
| 中スポーツセンター及び、栄定住促進住宅新築工事 | RC | 10,000 | 鴻池組 |
| 名古屋郵便貯金会館庁舎新築工事 | SRC | 34,000 | 鴻池組 |
| 池下再開発ビル建築工事 | SRC・S | 59,341 | 鴻池組 |
| 春日井市民病院新築工事 | SRC | 19,500 | 鴻池組・佐藤工業 |
| 名城病院新築工事 | SRC | 28,524 | 佐藤工業 |
| 名古屋工業技術研究所サイエンスラボ棟 | RC | 4,999 | 奥村組 |
| 久居駅前再開発ビル建築工事 | RC | 45,000 | 熊谷組 |
| 県立高茶屋病院建築工事 | RC | 18,900 | 熊谷組 |
| NTTドコモ長野ビル建築工事 | SRC | 21,042 | 熊谷組 |
| 市道高速2号黒川ビル建設工事 | RC・S | 15,710 | 戸田建設 |
| 愛知県新城大谷大学建設工事 | S | 7,800 | 戸田建設 |
| 岐阜県警察学校建設工事 | RC | 4,500 | 銭高組 |
| 名古屋市中央卸売市場建設工事 | RC・S | 35,351 | 銭高組 |
| 志摩リゾートホテル温浴施設建設工事 | RC | 68,000 | 銭高組 |
| 県立精神薄弱者厚生施設建設工事 | RC | 3,900 | 銭高組 |
| 大垣情報工房建設工事 | RC | 10,000 | 大日本土木 |
| 北方南ブロック第2期工事 | RC | 大日本土木 | |
| 核融合化学研究所建設工事 | SRC | 10,220 | 西松建設 |
| 田原町立神戸小学校建設工事 | RC | 7,200 | 西松建設 |
| 南郊ハイム壱番館建設工事 | RC | 1,472 | 住友建設 |
| 高畑シティハイツ | RC | 2,137 | 住友建設 |
| 愛知県立大学新築工事 | SRC | 11,847 | 矢作建設 |
| 港品川ショッピングセンター | S | 大林組 | |
| 大同工業大学新キャンパス新築工事 | 大成建設 | ||
| 豊田スタジアム | 大成建設 | ||
| 中警察署 | 熊谷組 | ||
| 東スポーツ | 熊谷組 |
3.作図可能枚数
1ヶ月当り150枚~200枚
4.施工図作図体制

| A.管理技術者 | 全物件の納品図面について最終チェックを行う。 |
| B.客先窓口及び物件担当 | 客先との打合せ内容、指示事項を作図スタッフに伝達。 スタッフの作図図面のチェックを行う。 |
| C.作図スタッフ | 物件担当の指示に従い作図。 物件の規模により人員の配置を調整。 |